ул. Ефремова, 52
ulyanovsk@kotel-kv.ru
8 (800) 551-70-98
Бесплатно по России
Видео
Фото
Чертеж
Уточните ваш запрос, если товар не подходит
Топливо
Паропроизводительность, кг/час

Паровой мазутный котел 1200 кг в час 115 °С 0.07 МПА в Ульяновске

Цена парового мазутного котла 1200 кг/ч 115 °С 0.07 МПА в Ульяновске 1 870 000 рублей

Цена на паровой мазутный котел 1200 кг в час 115 °С 0.07 МПА с доставкой от 1 870 000 рублей с НДС
Условия поставки:
В наличии на складе
ТК по России и Казахстану
Безналичный расчет
Этот товар вы можете купить в лизинг

Паровой жаротрубный котел

Работает с горелками различных производителей

Удобно размещается в маленьких котельных

Плавная выработка пара даже при подпитке холодной водой, без температурных колебаний

Дымосос не требуется, работает на самотяге

С котлом поставляется полный комплект запорной арматуры и КИП

Для очистки поверхностей нагрева от сажи остановка котла не требуется

Температура пара до 115 °С, регистрация в Ростехнадзоре не требуется

Технические характеристики
Комплект поставки
Дополнительно потребуются
Отзывы
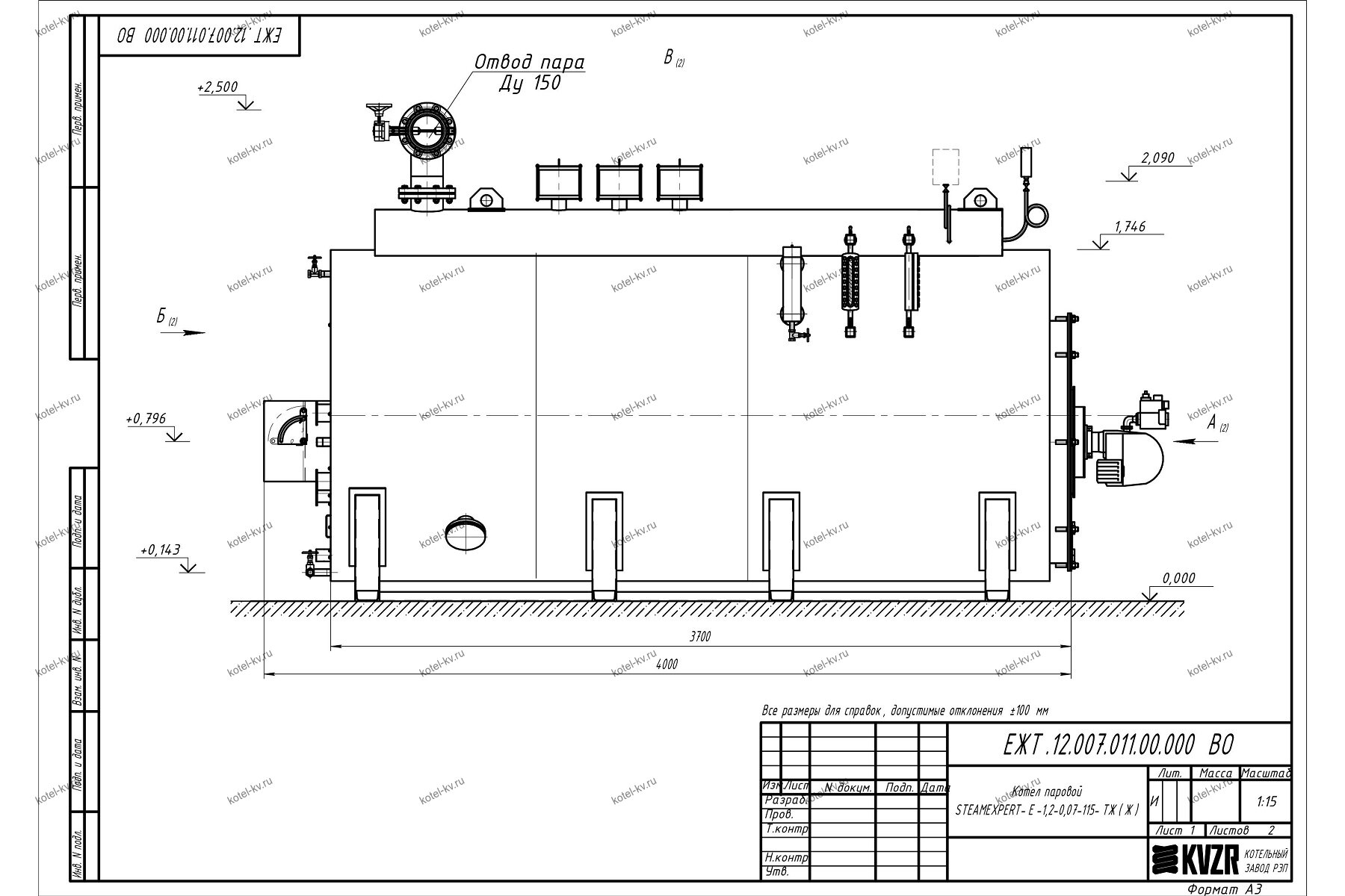
Тип котла Жаротрубный Полный объем котла, м³ 3.96
Паропроизводительность, кг/час 1200 Объем паровой части, м³ 0.37
Производительность, т/ч 1.2 Аэродинамическое сопротивление, Па (мм. вод. ст.) 38
Тепловая мощность, кВт 900 Тяга Принудительная
Диапазон регулирования теплопроизводительности, % 40-100 Объем топочной камеры, м³ 2.13
Топливо Мазут Размер топочной камеры, диаметр*глубина, мм 1195*1900
Низшая теплота сгорания топлива МАЗУТ, кКал/кг 9260 Присоединительные размеры выхода пара, Ду 150
КПД (МАЗУТ), не менее, % 80 Присоединительные размеры по водяному тракту, Ду 32
Расход топлива при максимальной нагрузке котла (МАЗУТ), кг/ч 95 Присоединительные размеры по дымовым газам / диаметр дымовой трубы, мм 400
Расход условного топлива, кг/ч 126 Габаритные размеры, длина*ширина*высота, мм 4000*1800*2100
Температура пара, °C 95, 110, 115 Масса, кг 3250
Избыточное давление пара, не более, МПа 0.07 Марка котла STEAMEXPERT
Избыточное давление пара, не более, кгс/см² 0.7 Энергоэффективность Высокая
Избыточное давление пара, не более, бар 0.7 Бренд STEAMEXPERT

Это устройство работает со вспомогательным оборудованием, которое приобретается отдельно. Если вы хотите сразу узнать стоимость всей установки, добавьте заинтересовавшие вас позиции в корзину. Чтобы точно расчитать стоимость доставки до вашего объекта, укажите его адрес в корзине и оправьте нам заявку. Обычно мы отвечаем в течение дня.

Щит управления КПа на мазуте Щит управления КПа на мазуте
Тип управляемого оборудования
Паровой котел КПр
168 000
Горелка СибСтронг мазутная Горелка мазутная СибСтронг IL-7S2
Топливо
Мазут
Мощность горелки, КВт
600-1800
Цена скоро
появится
Насос CDL Насос CDM 3-3 (0.37 кВт)
Цена скоро
появится
Водоподготовка парового котла Водоподготовка парового котла
Цена скоро
появится
Газоход котла Газоход котла
Цена скоро
появится
Об этом товаре еще нет отзывов. Будьте первым!
Оставьте ваш отзыв
Котел паровой КПа 1200 М
Паровой котел на мазуте КПа 1200 М
Изготовление парового котла КПа 1200 М
Производство парового котла КПа 1200 М

Паровой котел КПа 1200 М

Паровой котел КПа 1200 М на мазуте

Паровой котел КПа 1200 М изготовление

Паровой котел КПа 1200 М производство

Паровой котел КПа М 1200 кг пара в час на мазуте.

Основные характеристики:

  • паропроизводительность 1200 кг пара в час
  • максимальная температура пара 115 град;
  • давление пара 0.07 МПа, 0.7 кгс/см2;
  • тепловая мощность 0.9 МВт, 900 КВт;
  • топливо – мазут;

Подобрать требуемую мощность парового котла для вашего предприятия вы можете по ссылке.

Сравнивая цены на паровые котлы в Ульяновске, обратите внимание на комплектацию!

Комплект поставки котла нашего производства:

Схема подключения арматуры парового котла Схема подключения арматуры парового котла

  • Котельный блок КПа-1200 М - 1 шт
  • Предохранительный клапан парового котла КПС 0,7 - 3 шт
  • Вентиль 15Б1П Ду 20 Ру 16 - 1 шт
  • Кран шаровый - 5 шт
  • Указатель уровня 12кч11бк №6 - 2 шт
  • Запорное устройство указателя уровня 12б2бк Ду 20 - 2 шт
  • Затвор чугунный Ду 150 Ру 16 - 1 шт
  • Клапан обратный муфтовый Ду 32 Ру 25 - 1 шт
  • Кран трехходовой 11б38бк2 Ду 15 (под манометр, пар) - 3 шт
  • Манометр ДМ2005Сг (ТМ-610.05) 1,0 кгссм2 для КП - 2 шт
  • Манометр МП160 6 кгс/см2 - 1 шт

Дополнительно для подключения вам потребуются

  • Питательный насос CDM 3-3 (0,37 кВт)
  • Мазутная горелка СибСтронг IL-7S2
  • Автоматика
  • Водоподготовка (подбирается на основании химического анализа воды)

Устройство и описание

Промышленный паровой котел КПа 1200 мазутный жаротрубный, состоит из двух жаровых труб из листа 5. Пространство между обечайками заполняется водой, сверху устанавливается паросборник, в котором собирается образующийся пар. Для получения высокого КПД котла в хвостовой части топки устанавливаются цельнотянутые трубы диаметром 57 толщиной стенки 3,5 мм сталь 20. По ним также движется и нагревается теплоноситель.

На фронт мазутного котельного блока крепится горелка. В топочной камере происходит горение топлива. Газы выходят из топки в верхней части и сразу поступают в дымовую трубу, поставляемую в комплекте. Дымосос для КПа 1200 М не требуется, парогенератор работает на самотяге.

Подача питательной воды производится питательным насосом. В соответствии с ГОСТ для паровых котлов должно быть установлено два насоса, рабочий и резервный. Дренажи и воздушники производят дренирование трубной системы от шлама и удаление скапливающего воздуха.

На паросборник устанавливаются 2 предохранительных клапана марки КПС-0.5.

Принцип работы парового котла КПа 1200 М

Газ сгорает в топке. Горячие газы омывают трубную систему, нагревают воду и производят насыщенный температурой до 115 град. При необходимости парогенератор может производить пар меньшей температуры – 95 град и меньше.

Дымовые газы проходят трубную систему и поступают дымовую трубу.

Паровой котел КПа М 1200 кг пара на мазуте должен быть укомплектован автоматикой. Заводская автоматика ограничивает предельно допустимые параметры работы и давление пара, управляет вентилятором и подпиточным насосом и регулирует уровень воды в барабане.

Температура сухого насыщенного пара в парогенераторе регулируется изменением давления пара, при необходимости снижения температуры необходимо выставить соответствующее давление пара на электроконтактный манометре. Автоматика парового котла по заданному давлению производит управление горелкой и, следовательно, интенсивностью горения.

Вода для паровых котлов подготавливается в соответствии с требованиями руководства по эксплуатации, «Правилам технической эксплуатации тепловых энергоустановок» и ГОСТ Р 51232-98. Для подбора водоподготовительной установки требуется провести химический анализ воды.

Подключение котла КПа 1200 М

Схема подключения парового котла на мазуте Схема подключения парового котла на мазуте

Подключение и монтаж производятся по проекту.

Для ввода парового котла на мазуте в эксплуатацию требуется проведение ПНР и получение в Ростехнадзоре разрешения на ввод мазутного котла в эксплуатацию. Ростехнадзор проверяет правильность выполнения монтажных и пусконаладочных работ, а также соблюдения требований правил охраны труда.

На нашем заводе вы можете купить все необходимое оборудование для подключения парового котла КПа-1200 М в Ульяновске.

Безопасность котла

Безопасная эксплуатация котла обеспечивается выполнением требований

  • Инструкции по эксплуатации
  • Правил устройства и безопасной эксплуатации паровых котлов с давлением пара не более 0.07 Мпа (0.7 кгс/см2)
  • Правил технической эксплуатации тепловых энергоустановок

Требования к помещениям котельной регламентируются СП 89.13330.2016 «Котельные установки»

Паровой мазутный котел КПа-1200 должен управляться автоматикой безопасности, имеющей сертификат соответствия.

Одним из самых важных устройств, обеспечивающих безопасную эксплуатацию парового котла, является предохранительный клапан парового котла. Он обеспечивает сброс пара при превышении давления в котле свыше допустимого и предохраняет установку от разрушения. Необходимые условия монтажа и эксплуатации котла КПа 1200 М представлены в паспорте и руководстве по эксплуатации.

Гарантии изготовителя

На заводе изготовителе мазутный паровой котел КПа 1200 М подвергается гидравлическому испытанию давлением 0,2 МПа (2 кгс/см2).

Гарантийный срок - 24 месяца со дня отгрузки с завода.

Гарантийное обслуживание включает в себя бесплатное устранение скрытых заводских дефектов, замену деталей и узлов вышедших из строя в период гарантийного срока при условии монтажа и эксплуатации оборудования Покупателем в соответствии с его назначением, технической документацией, техническими нормами, правилами ввода в эксплуатацию и эксплуатации данного оборудования.

Срок эксплуатации парового котла 10 лет.

Описание товара

    Купить паровой котел на мазуте 1,2 т/ч 115 °с 0.7 бар в Ульяновске

    Для получения консультации укажите номер вашего телефона
    Смотреь обзор на

    Паровой котел КПа 1200 М (производительность 1200 кг пара в час, максимальная температура пара 115 С°, давление пара 0.07 МПа (0.7 кгс/см²), тепловая мощность 0.9 МВт (900 КВт), топливо - мазут). Применяется для технологических целей в производстве.

    Патенты на котельное оборудование

    Патенты

    Смотреть все патенты
    Сертификаты Завода

    Сертификаты

    Смотреть все сертификаты
    Членство в СРО

    Допуски

    Смотреть все допуски
    Отзывы о продукции котельного завода

    Отзывы о продукции котельного завода

    Смотреть все письма
    Аттестованная технология сварки

    Аттестованная технология сварки

    Смотреть все аттестаты
    Цена с НДС
    1 870 000
    Смотреть
    комплект